| 最大積載量 | 16,000kg |
|---|---|
| 走行速度 高/低 | 13.1 / 7.9km/h |
| 接地圧 空車/積車 | 36.3/68.0 kPa |
| 運転質量 | 18,300kg |
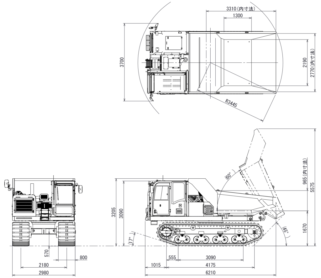
| 全長 | 6,210mm |
| 全幅(クローラ幅) | 2,980mm |
| 全高 | 3,205mm |
| 最低地上高 | 570mm |
| 履帯幅 | 800mm |
| 荷台形状 | スクープエンド |
| 荷台寸法 長さ×幅×高さ | 3,310×2,770×965mm |
| 荷台容量 平積/山積 | 5.75/7.95m³ |
| エンジン型式 | キャタピラーC7.1 |
| 定格出力 | 225kW/2,200min-1 |
| 燃料タンク容量 | 360ℓ |
| 作動油タンク容量 | 183ℓ |
| 尿素タンク容量 | 32ℓ |
| 特定特殊自動車の車名及び型式 | モロオカ MST160-CR5A |
| 特定原動機の名称及び型式 | Caterpillar C7.1 StageV |
| 排ガス基準 | オフロード法 2014年規制 Tier4 Final EU Stage V |
| ※仕様は予告なく変更する場合があります。 | |
外観図

ダウンロード 製品カタログ ダウンロード
特長
従来機の枠を超えた機動性と積載量の両立
最高速度は11tクラス(MST-2200VDR)比で31%向上。クラスを超えたスピードが、現場の効率化とコスト削減を実現します。
11tサイズの16tキャリア
全長・全幅は11tクラス(MST110CR)と同一。夜間輸送時の先導車不要。油圧ショベル0.8クラス(20tonクラス)と同様に超低床トレーラで昼間輸送可能。輸送負担を最小限に抑えます。

360°全旋回キャリアダンプ
上部体が旋回できることで狭小地での転回時に信地・超信地旋回不要の方向転換が可能。排土時の位置合わせの際にも上部体を旋回させることで容易な操作が可能となります。

強靭な足回りと高い走行性能
肉厚で、繋ぎ目のないゴムクローラは耐久性抜群‼開発から40年の経験とノウハウを生かした傑作です!ゴムクローラを動かしているのがHST(ハイドロ・スタティック・トランスミッション)システムです。油圧による駆動伝達装置は、滑らかでスムーズな動きを実現します。

警告ランプ及び液晶モニタを
運転席右側に集中配置
運転席右側に警告ランプ及び液晶モニタを配置。燃料残量、電圧、エンジン回転数計等の車両に係る各種ステータスや車両に異常があった際の警告ランプ点灯等が容易に視認できるようになりました。

耐摩耗鋼板「HARDOX®」荷台装備
耐摩耗鋼板HARDOX® IN MY BODY を使用した荷台となっており、耐久性を向上させました。長い耐用年数が特徴で、ランニングコストを抑えます。

電子制御式走行レバー
電子制御式の走行レバーを搭載。走行は左手のみで直感的な操作が可能。操作姿勢も従来機より改善され、オペレータの負荷も軽減しました。また、高低速切換、ホーン等の操作系統が走行レバーに集約されており、オペレータの意のままに車両を走行させることができます。

「オートデセル機能」「スローモード」搭載
「オートデセル機能」ではアイドリング状態が一定時間続いた際にエンジン回転数を自動で下げることで、燃費を向上させ、CO₂排出、騒音も低減します。
「スローモード」は微速操作に優れたモードです。道幅の狭い場所での走行、車両を運搬するための積載作業、駐車などの微速を必要とする場面で安心して走行させることができます。
メンテナンス性
メンテナンス性の向上
効率的な整備点検・メンテナンスを行えるように各機器を配置。開口部の大きいグリルにより点検・整備がスムーズに行え、メンテナンスのしやすい構造となっています。また、燃料タンク横に尿素タンクを配置することで同時に補給ができるデザインにしました。

大型ステップを装着
点検・メンテナンス時の車両昇降に使用するステップが改良され、昇降がより容易になりました。

ピンタイプのダンプアップロック
従来のバータイプからピンタイプのダンプロック機構を採用。作業性と安全性を向上させています。
安全性
ROPS/FOPS対応キャビン
居住性・視認性の良いキャビンは、転倒時にオペレータを保護するROPS(転倒時保護構造)/FOPS(落下物保護構造)に対応、エアコンは標準装備となっています。

充実した安全機能
緊急停止スイッチを押すことにより車両のエンジンをストップさせ、緊急停止できます。(左)※緊急停止スイッチは非常時以外は使用しないでください。
駐車ブレーキをONにしないとエンジンの始動ができないようになっており、エンジン始動後の意図しない動作を防止します。また、旋回パーキングスイッチを装備し、意図しない旋回操作を防止します。(中央)
座席左側に安全ロックレバーを搭載しています。駐車ブレーキに加え安全ロックレバーを搭載することで、安全性が大幅向上し、意図しない動作による事故を防止します。(右)

安全な作業の為の装備
「3D 360 MONITOR」がオペレータの死角を全方位カメラでサポートします。リモコン操作により、360°表示、前後左右それぞれの表示の切り替えに対応しています。
キャビン上部の大型LED前照灯は照射性が高く長寿命。夜間等の視認性を高めます。

環境性

